Treść strony

ZAKOŃCZENIE KONSULTACJI SPOLECZNYCH – II ETAP

W miesiącach październik - listopad 2021r. w Golubiu-Dobrzyniu odbyły się konsultacje społeczne w ramach projektu „Planowanie z mieszkańcami” (POWR.02.19.00-00-KP12/18), współfinansowanego ze środków Europejskiego Funduszu Społecznego w ramach Działania 2.19 Programu Operacyjnego Wiedza Edukacja Rozwój 2014-2020.

Przedmiotem konsultacji był projektu miejscowego planu zagospodarowania przestrzennego Zakole Drwęcy. Głównym celem II etapu procesu konsultacyjnego było przedstawienie pozytywnie zaopiniowanego projektu mpzp przez organy uzgadniające oraz zebranie uwag i ich rozpatrzenie. Miasto na ten cel pozyskało grant w wysokości 23.190,00 zł.

Z pozyskanych środków zakupiono m.in. trzy tablice zewnętrzne informacyjne zlokalizowane na ulicach: Brodnicka, Równinna i Działyńskich. Zakupiono również monitor interaktywny, który został umieszczony w holu budynku Urzędu Miasta. Odnowiona została licencja na platformę konsultacyjną JST.

Składamy serdeczne podziękowania wszystkim osobom, które brały udział w konsultowanym miejscowym planie zagospodarowania przestrzennego Zakole Drwęcy.

  • Obraz1_kons
  • Obraz2_kons
  • Obraz3_kons
  • Obraz4_kons
  • Obraz5_kns

RAPORT - INFORMACJA ZWROTNA

Procedura planistyczna

  • PROCEDURA PLANISTYCZNA

Zaproszenie na spotkanie otwarte 20 października 2021 r.

Zapraszamy mieszkańców w środę 20 października 2021 r. na godz. 15.30 - Urząd Miasta, Plac 1000-lecia 25  sala nr 1 - na spotkanie otwarte w ramach Konsultacji Społecznych etap II miejscowego planu zagospodarowania przestrzennego - Zakole Drwęcy.

  • ZAPROSZENIE - KONSULTACJE SPOŁECZNE

Konsultacje społeczne - spotkanie fokusowe

1 października 2021 r. w Domu Kultury w Golubiu-Dobrzyniu odbyło się spotkanie fokusowe w ramach projektu „Planowanie z mieszkańcami”.

Dziękujemy za zainteresowanie, aktywne uczestnictwo w procesie konsultacyjnym oraz wspólną zabawę podczas animacji i przedstawienia teatralnego „Profesorek Wodorek i Super bohaterowie”. Dla wszystkich uczestników przygotowano słodki poczęstunek oraz gorące napoje.

Serdecznie zapraszamy na kolejne spotkanie konsultacyjne tj. spotkanie otwarte – dyskusja publiczna, które odbędzie się w środę, 20 października 2021 r., o godzinie 15.30 w sali nr 1 Urzędu Miasta Golubia-Dobrzynia.

Celem spotkania jest zebranie uwag dotyczących projektu uchwały w sprawie miejscowego planu zagospodarowania przestrzennego - Zakole Drwęcy. Wszystkie uwagi zostaną przekazane urbaniście przygotowującemu projekt mpzp.

 

  • 2
  • 3
  • 4
  • 1111

Zapraszamy mieszkańców do wzięcia udziału w konsultacjach społecznych z geoankietą

Zapraszamy mieszkańców do wzięcia udziału w konsultacjach społecznych z wykorzystaniem GIS-u partycypacyjnego z geoankietą miejscowego planu zagospodarowania przestrzennego Zakole Drwęcy.

Geoankieta jest platformą internetową, która pozwala w łatwy i szybki sposób wyrażenia opinii na temat miejscowego planu zagospodarowania przestrzennego. Umożliwia również działania na mapach.

Celem konsultacji jest przedstawianie miejscowego planu zagospodarowania przestrzennego Zakole Drwęcy oraz zebranie uwag dotyczącego obszaru objętego projektem planu. Wszystkie zebrane uwagi zostaną przekazane urbaniście przygotowującemu projekt mpzp.

Konsultacje będą prowadzone do 23.11.2021 r.

https://golub-dobrzyn.konsultacjejst.pl/

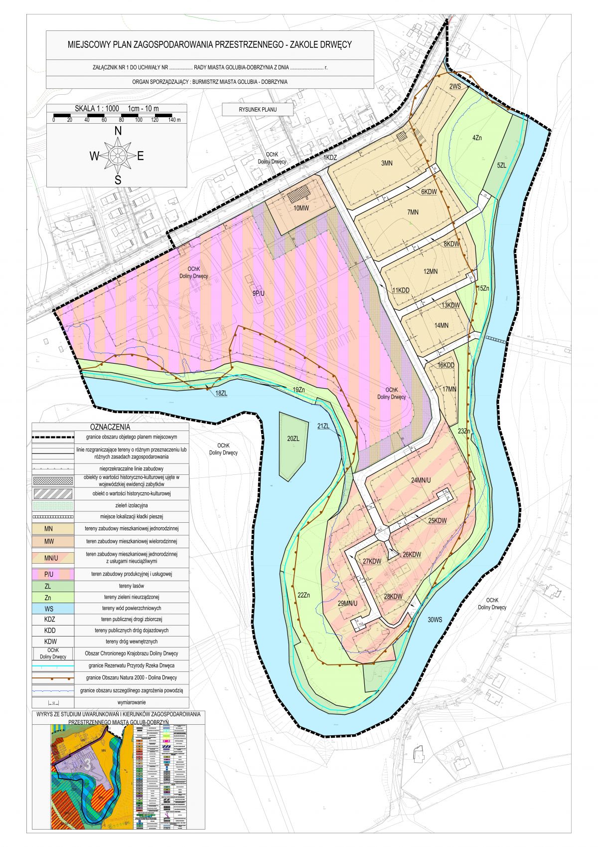
  • MPZP_-_ZAKOLE_DRWECY_RYS._-_do_wylozenia-1

OGŁOSZENIE BURMISTRZA MIASTA GOLUBIA-DOBRZYNIA o wyłożeniu do publicznego wglądu projektów: zmiany „miejscowego planu zagospodarowania przestrzennego obejmującego obszar Starego Miasta oraz rejon Zamku” przy ul. Wodnej, miejscowego planu zagospodarowania przestrzennego – Zakole Drwęcy

https://bip.golub-dobrzyn.pl/783,ogloszenia-2021-rok

 

Konsultacje społeczne - II etap miejscowego planu zagospodarowania przestrzennego Zakole Drwęcy

  • 32639